Interior Design

My interior design projects showcase my desire to create innovative, environmentally conscious, functional spaces or designs through thoughtful planning and creative problem-solving.

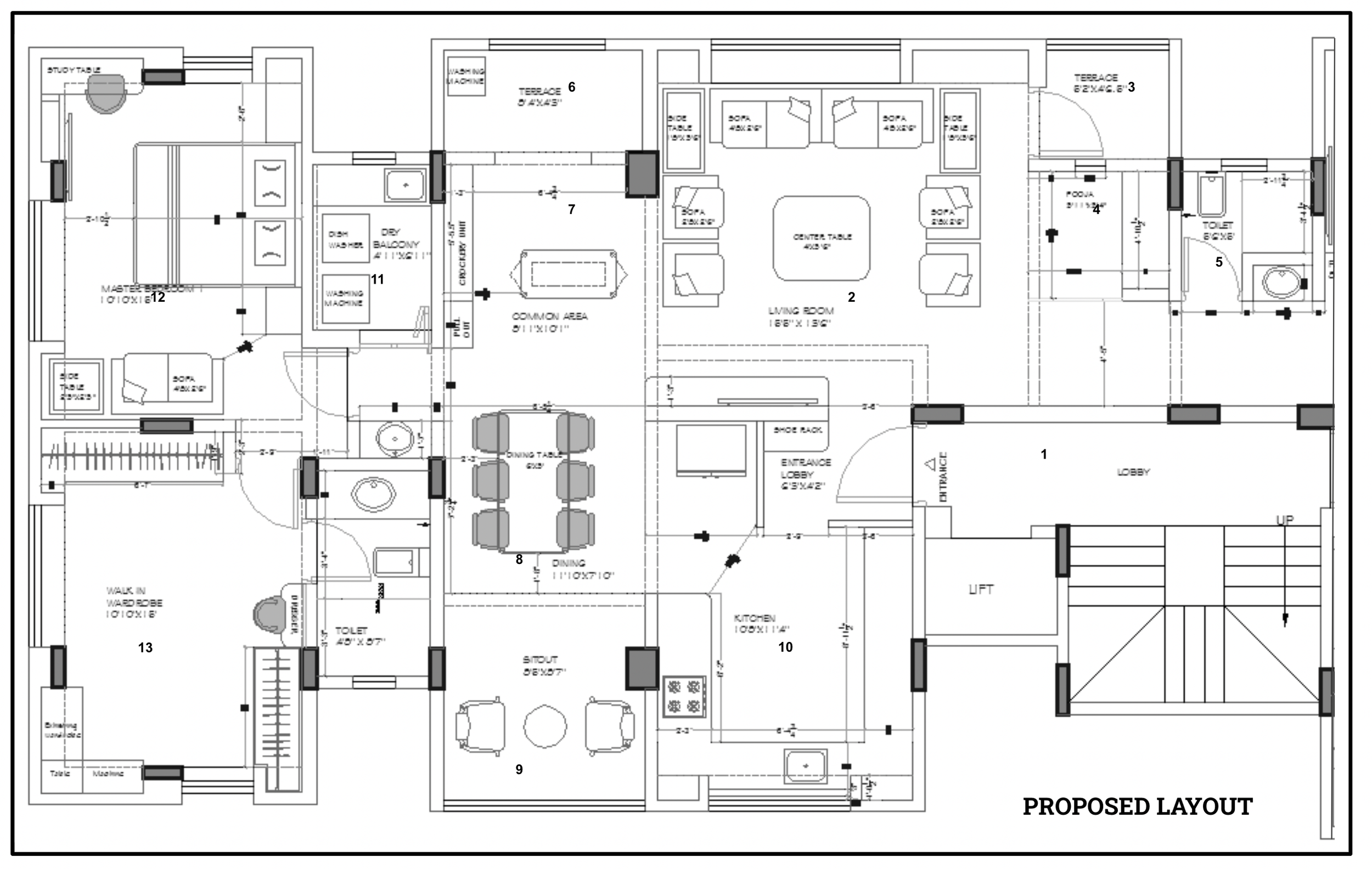
Project 1- Residential Design for Mr & Mrs. Shintre

To design a comfortable residential space for Mr. & Mrs.Shintre, located at Prabhat Road, Pune. 

The clients emotive connection to the space felt disjointed, the lighting, texture and color created a sterile atmosphere and consequently affected how the client interacted with the space on a functional level.

Role: Sole designer, Liaising between the client & Ar.Ashish Sachade, Owner of Unison Designs

Realization: 2018

Duration: 8 months

Concept: In this project, the eclectic design style was used, which artfully mixed elements of multiple design styles into one space just like a mashup of styles. It involves an informal mix of furnishings, decor, bright colour palettes and patterns all in one.

Accomplishments: Commended for designs of cost-saving, space-saving storage solutions that maximized limited remodeling budget and for client empathy and solutions provided.

Total carpet area: 1560 Sqft. 

Project 2- Thesis: Advertising Agency

To design a convenient and appealing advertising agency from an employee, owner, client and designers point of view for Mr.Vijay Jain, located at Suyog Centre, 7th Floor, Market Yard Rd, Gultekdi, Pune. Visiting an Ad agency in the first place should give the client a 'vibe' that will define the company the moment they walk in the door. The design and outfitting of workspace is a major capital investment for any organization that can affect a number of business outcomes including productivity, employee satisfaction, creativity, talent recruitment and most importantly brand impact.

Name of the Agency

Logo Design

Design and Evaluation

As the name suggests PEP – which means Energy and high spirit or Liveliness ! The name itself shows the enthusiasm of the company and their working spirit. 

One has to work smart and be strategic in their actions. Owls – Sit and wait - Take notice – ACT ! Owls do not follow the “herd” mentality.

An office full of energy and enthusiasm, organic and linear shapes, bright colours, natural daylight, biophilic elements create an uplifting environment- always inspiring and boosting the confidence level of the staff and clients.

Role: Sole designer, Guided by thesis coordinator

Realization: 2016

Duration: 7 months

Concept: COMFREE – Comfort & Freedom. Today’s best employees demand a workplace that stimulates creativity, collaboration, and communication while also reducing stress and anxiety. Ideally you want a workplace that allows people to focus and concentrate whenever needed, and to collaborate and communicate whenever needed. You also want a workplace that is physically and mentally comfortable so that people can perform and function at their best. This is what today’s modern office design trends are striving to achieve.

Accomplishments: Praised for designing an office interior by being considerate to the employees, employer and the customers and not only creating a healthy environment, but also energizing the office to enhance and grow business as well as increase productivity.

Total carpet area: 9058 Sqft. 

Project 3- Office Interior for Mr. Vivek Agarwal

A  “Vastu friendly” office interior designed according to the clients desires and needs, by taking into account the basic principles of design, layout, spatial planning and colour for Mr.Vivek Agarwal, located at New Era Society, Bibewadi-Kondhwa Rd, Marketyard, Pune.

Role: Sole designer, Freelancer    

Realization: 2020

Duration: 3 months

Accomplishments: “Without a doubt, I’ll hire you again!” the client said at the end, praising me for being patient and listening to all his demands and turning them into reality. My efforts were commended by the client, who replicated the design across all branches.

Total carpet area: 225 Sqft. 

Previous
Previous

Visual Design & Info Graphics

Next
Next

Artwork